Get your floor plans.
Better. Faster. Cheaper.
BIM4Sites creates the floor plans and Revit models you expect, when you expect them, for a price you won’t expect.
Let us prove it to you.
BIM4Sites creates the floor plans and Revit models you expect, when you expect them, for a price you won’t expect.
Let us prove it to you.
100 years of combined staff experience has culminated in a field to office process that provides you with complete confidence in your buildings’ measurements, floor plans and Revit models.
"Communication is the key to success." Our process is usually standard, but your project may not be. We review all aspects of your project to make sure we have a plan crafted for success.
With our mobile 3D laser scanning iMS3D we can capture up to 400,000 sq ft in a single day accurate to less than 1/2"! This is our comprehensive, accurate and single site visit approach.
Great field data means great floor plans and Revit models. Our expert modeling team uses the wealth of data captured to extract exactly what you need. Need something else in the drawings? We can extract it without another site visit.
Remember that counter up above that shows how many sq ft we have measured? Our confidence comes from our experience and that experience brings our customers confidence.
Whether leasing, renovating, or managing, having out of date floor plans costs you time and money. Are you losing time and money without realizing it?
Are you paying $0.09, $0.10, or more for your floor plans? And does it cost your staff and tenants time and money because it takes days, or even weeks onsite?
Your time and resources are more efficient, and profitable, doing what you do best. Work with us to increase your margins by letting us do what we do best.
Have a look at some of the projects that we have delivered on time, in budget, and with our partners’ satisfaction.
Your resources are more efficient, and profitable, doing what you do best. Work with us and increase your margins
by letting us do what we do best, for you.
Book a call with us to learn more about how we can help you.
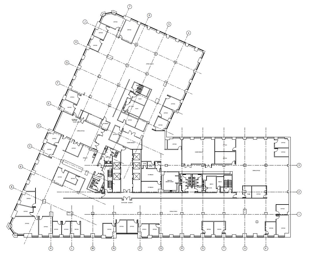
Use the link below to check out a sample PDF and graphic.
Get in touch with us and we'll get you a plan and pricing right away.
For commercial, industrial, and retail buildings, our rates begin at $0.07 per square foot (100,000 sq ft minimum), making us a cost-effective choice for your business. Ask us about volume discounts and small spaces. You’ll be surprised how affordable our service can be.
By outsourcing your floor plan needs to us, you can free up your own resources to focus on what your business does best. Don’t waste time and resources trying to handle floor plan updates in-house. Contact us and choose BIM4SITES for all of your as-built survey needs.
Little to no discrepancy.
It is not uncommon for firms to make mistakes when re-measuring. Omitting areas can greatly effect the sq ft numbers resulting in significant money lost.
Help Clients grow their space.
Buildings that are re-measured can grow for a variety of reasons. BOMA standards have varied over the years but have been more favorable for the landlord.. Re-measuring at the right time can help forecast growth for client portfolios and keep you ahead of the market trends.
Clear up common mistakes
In most cases we will be cheaper and faster than any price an architect will charge. In fact, many architects choose to use us so they can deliver to you faster while using their staff on more complex tasks for you, their client.
In fact, should you so wish, we would be happy to work directly with your architect.
Typically we can be on site within 72 hours depending on access. Also, if we have all the information we need up front then we can plan and schedule your project right away.
Turnaround time depends on the size of the project, however we work to meet our client’s schedule. In an extreme situation, we delivered over 1,500,000 square feet of CAD floor plans in 2 1/2 weeks!
Trust that we specialize in conducting as-built surveys to provide accurate and up-to-date floor plans for our clients. Our team is highly efficient and capable of completing up to 500,000 square feet of warehouse surveying and 200,000 square feet of office space surveying per day. Know that we’ll get the job done quickly and efficiently.
We have service hubs based in Houston and Washington DC, but we work all over the country. In the last few years we have completed projects in DC, Maryland, Virginia, New Jersey, New York, Ohio, Oregon, Washington, California, North Dakota, Indiana, West Virginia, North Carolina, South Carolina, Florida, Georgia, Texas, Colorado, Minnesota, Utah, Pennsylvania, Arizona, Illinois, Massachusetts, Nevada and more!
Accordion Content
Our 3D scanners are accurate to 1cm and even down to 1mm. Your floor plans and BIM/Revit models are created based on that highly accurate data and will adhere to BOMA standards!
Trust that we specialize in conducting as-built surveys to provide accurate and up-to-date floor plans for our clients. Our team is highly efficient and capable of completing up to 500,000 square feet of warehouse surveying and 200,000 square feet of office space surveying per day. Know that we’ll get the job done quickly and efficiently.
Completing all the work in the US ensures that our technicians understand the need for US standards such as those for BOMA or REBNY. It also ensures fast and valuable communication between our CAD/Revit crew and our field staff to better understand any issues that arise. This translates to satisfied clients and meeting or exceeding EVERY deadline!

Client Manager
With over 30 years of international experience in client satisfaction in the survey and mapping business, Dave brings a superior wealth of knowledge and communication practices that ensure your success from start to finish.

CeO
Dom’s background is in cartography and digital mapping, but he has started businesses in aerial mapping, franchising, web products, farming and more. Partners can trust BIM4Sites was built on a solid foundation ensuring longevity and growth.

Operations
From warehouses, to apartments, to offshore oil rigs, to race tracks, if it can be measured and mapped, Nick has done it. Nick’s uncanny logistical and procedural mindset guarantees your project will be a success.